
01.项目介绍:三里屯一号,坐拥京城最繁华地段,入云端之际,独享三里屯静谧之境。CCD以全球顶级豪宅理念见解,将百年经典品牌元素融入空间设计,打造了Armani、Aston Martin、Bottega Veneta、Fendi、 Versace风格的国际服务式豪宅,致敬经典。150高的地标性建筑,270度的绝佳观景让远眺CBD的繁华和紫禁城的雄伟壮阔成为生活日常。44套豪华精装公寓,用继承传统来定义现代不必刻意炫耀,自然引人注目。戴德梁行作为世界顶尖的物业顾问之一提供24小时精细入微的数十项致密服务,尊享洲际酒店全天候服务,畅享五星级配套服务设施-宴会、餐饮、健身、SPA。双管家的齐力,把服务做成艺术,使奢美成为寻常让每一位进入大堂的主人都一步归家。
02.项目位置:北京市朝阳区三里屯通盈中心洲际酒店
03.售楼处位置:北京市朝阳区三里屯通盈中心洲际酒店
04.物业类型:公寓
05.产权年限:70年
06.占地面积:7708.56平方米
07.建筑面积:24000平方米
08.容积率:3.11
09.绿化率:无
10.总楼栋数:1
11.在售楼栋:1
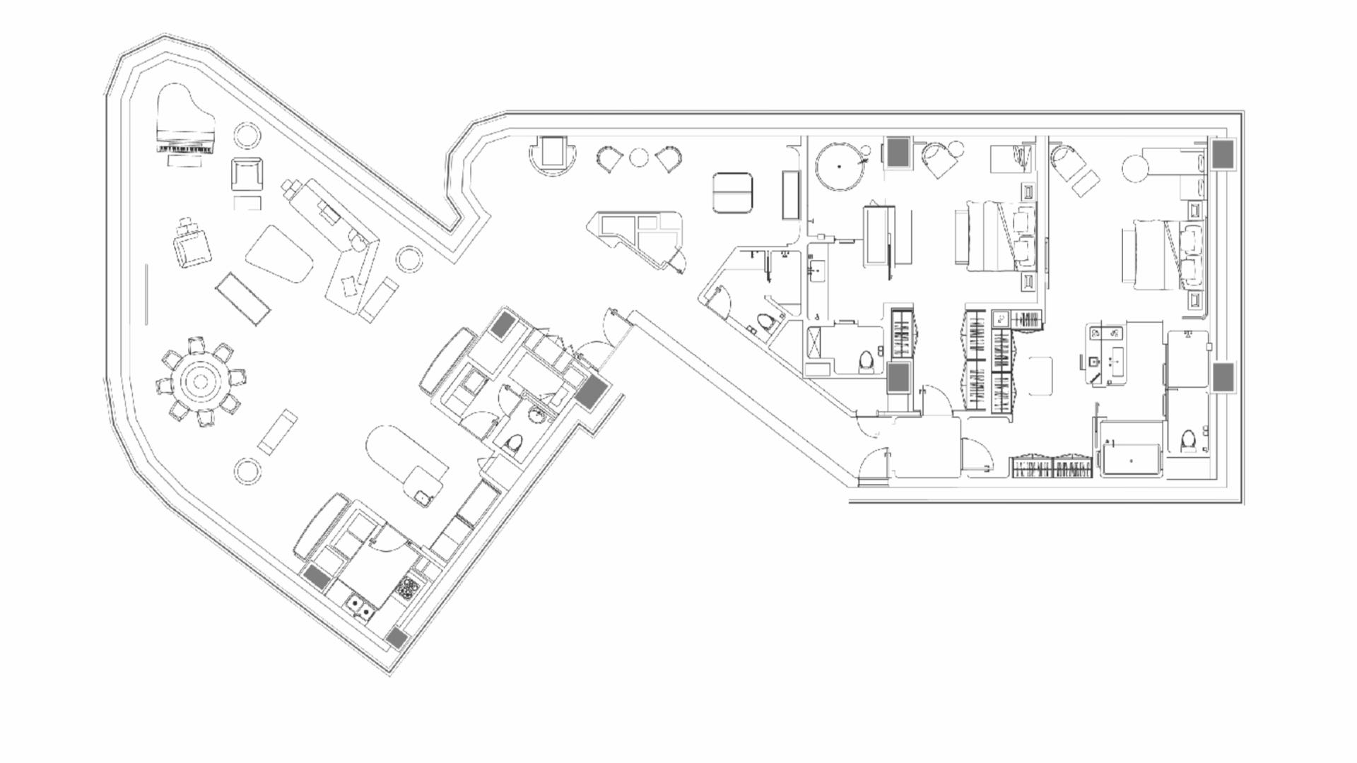
12.总户数:44户,平层3.8、复式3.6(装修完平层2.9米,装修完复式2.7米)
13.在售户数:23
14.在售户型:360、377、500、650、1000
15.得房率:69%
16.车位配比:1:2(只租不售每户可租2个,每月2000元)
17.梯户配置:5梯4户
18.交房标准:精装交付,没有具体报价
19.交房时间:外立面2016年建成 交房时间:2019年10月-2020年6月
20.供暖方式:市政、地暖、民水、民电、带燃气
21.开发商:北京通盈房地产开发有限公司
22.物业公司及物业费:戴德梁行加五星级酒店双重服务物业费37.94元/平米/月(包含取暖制冷设备费)
23.拿地时间:2006年
24.首期开盘时间:2019年10月1日
25.最近加推开盘:无
26.楼间距:无
27.交易流程:20%房款认购金→付清全款→180天解压网签。
28.是否可以贷款:否
29.是否可以落户:北京户口可以落
30.是否有学校划片:无
31.合同:两份;一份装修款,一份网签合同,网签备案价格6万,其余算装修款
32.建筑形式:塔楼高150米,地下4层,地上36层
33.功能区分布:B1-6层为商业,7-22层为洲际酒店,24-36层为住宅
34.装修设计:平层凯丽赫本、香港CCD;复式阿玛尼、芬迪、阿斯顿马丁、BV、范思哲、香奈儿
35.是否有预售证:有证可网签(有外销证,可以接受外汇)

